石原企画が提供する不動産情報サイト
»
賃貸物件
»
店舗・事務所
» 新保店舗事務所
賃貸物件
住居
(28)
1K~1DK
(7)
1LDK・2DK
(5)
2LDK
(5)
3DK・3LDK
(7)
4K以上~戸建
(4)
店舗・事務所
(2)
駐車場
(20)
売買物件
住居
(2)
土地
(2)
マンション
(0)
収益
(1)
株式会社 石原企画
岡山市中区国府市場65-7 Tel:086-275-7234 Fax:086-275-3747 登録免許番号 岡山県知事(9)第3269号
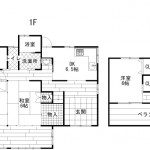
岡山市南区新保/新保店舗事務所
種別 :
店舗事務所
共益費 :
賃料 :
165000円
敷金 :
320,000
所在地 :
岡山市南区新保
礼金 :
160,000
面積 :
113.24㎡
駐車場 :
3台込み
築年月 :
1972年
交通 :
入居日 :
備考 :