石原企画が提供する不動産情報サイト
»
賃貸物件
»
住居
»
2LDK
» シャトー住吉
賃貸物件
住居
(28)
1K~1DK
(7)
1LDK・2DK
(5)
2LDK
(5)
3DK・3LDK
(7)
4K以上~戸建
(4)
店舗・事務所
(2)
駐車場
(20)
売買物件
住居
(2)
土地
(2)
マンション
(0)
収益
(1)
株式会社 石原企画
岡山市中区国府市場65-7 Tel:086-275-7234 Fax:086-275-3747 登録免許番号 岡山県知事(9)第3269号
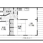
岡山市中区国富/シャトー住吉
所在地 :
岡山市中区国富
号室 :
405
種別 :
マンション
面積 :
58㎡
間取り :
2LDK
築年月 :
1989
賃料 :
56000円
駐車場 :
5000円
共益費 :
交通 :
敷金 :
なし
小学校区 :
礼金 :
56000円
中学校 :
備考 :
入居時定額クリーニング費66,000円要