石原企画が提供する不動産情報サイト
»
賃貸物件
»
店舗・事務所
» 児島柳田町貸倉庫・作業所
賃貸物件
住居
(35)
1K~1DK
(7)
1LDK・2DK
(5)
2LDK
(5)
3DK・3LDK
(7)
4K以上~戸建
(11)
店舗・事務所
(2)
駐車場
(20)
売買物件
住居
(2)
土地
(2)
マンション
(0)
収益
(1)
株式会社 石原企画
岡山市中区国府市場65-7 Tel:086-275-7234 Fax:086-275-3747 登録免許番号 岡山県知事(9)第3269号
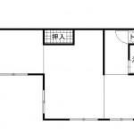
倉敷市児島柳田町/児島柳田町貸倉庫・作業所
種別 :
倉庫
共益費 :
賃料 :
44,000円
敷金 :
3ヵ月
所在地 :
倉敷市児島柳田町
礼金 :
1ヶ月
面積 :
約45㎡
駐車場 :
込み
築年月 :
交通 :
入居日 :
備考 :
市街化調整区域内に位置しております。トイレは汲取り式。農作業できます。